MEDINA
Ubicación
Medina del Campo (Valladolid)
Vivienda
Unifamiliar aislada
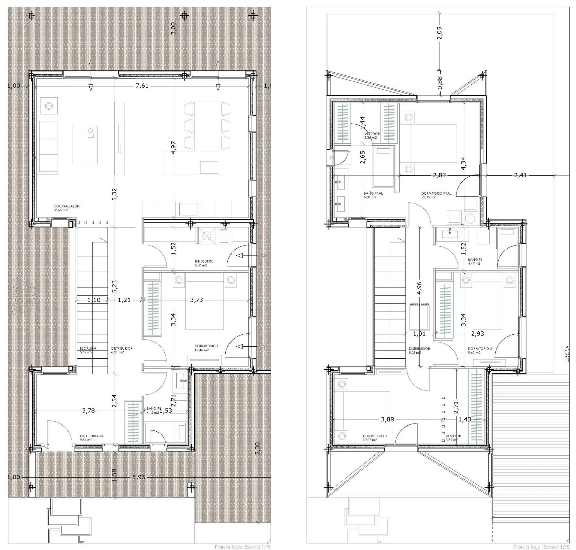
Esta vivienda unifamiliar de dos plantas situada en Medina del Campo (Valladolid) tiene un lenguaje muy claro que divide las diferentes zonas de la casa apreciable incluso desde el exterior.
Con orientación este/oeste, se compone de un basamento en tono madera que da unidad a toda la planta baja de la vivienda donde se desarrollan el bloque de salón-cocina, entrada y porches. Cada porche, del mismo material que su estancia contigua, se proyecta como una continuación de la misma de forma que fluyan los espacios en ambos sentidos.
En la planta alta sin embargo se pretenden distinguir claramente los dos volúmenes bien diferenciados de dormitorio principal y de dormitorios secundarios.
Se proyectan por tanto, dos grandes bloques blancos de paramentos biselados que orientan la luz hacia el interior de las estancias, cada uno con una orientación diferente.
Finalmente todo ello se cose mediante un espacio central que comunica ambas plantas y que posee un ventanal de doble altura que recoge toda la luz de la orientación sur y la introduce en la casa.
Arquitectos: Álvaro Fernández Rodríguez, Paula Esquitino García.
Arquitecto Técnico: Álvaro Fernández Rodríguez.
Colaboradores: Rafael Clemente Sánchez, Beatriz Guijarro Fernández.

